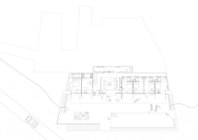
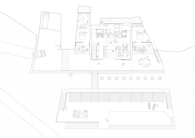
Das Grundstück mit starker Hanglage am südlichen Peloponnes mündet an einem kleinen Strand, abseits der sommerlichen Touristenströme der messenischen Küste gelegen. Im Osten reicht der Blick bis zur Mani Halbinsel. Das Haus ist aus dem felsigen Hügel heraus gearbeitet, eingebettet in die Landschaft. Seine tatsächliche Größe bleibt dadurch verborgen. Dennoch bietet es großzügigen Raum für die siebenköpfige Familie und ihre Gäste.
Messene, Peloponnes, Griechenland 2020—23









