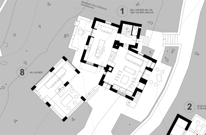
Das Grundstück auf welchem der sommerliche Wohnsitz für eine Familie entstehen soll, liegt im Süden der Insel Sifnos. Starke Hanglage und eine weite Aussicht auf die benachbarten Kykladeninseln. Das Haus ist in einzelne, unabhängige Baukörper gegliedert. Setzung und Silhouette der weiss geschlämmten Konstruktionen aus Bruchstein und Beton sind geprägt durch die topografische Struktur und Geometrie des ummauerten Grundstücks, sowie durch die Auseinandersetzung mit der lokalen Bautradition.
Sifnos, Griechenland 2008
Fthenakis Ropee Architektenkooperative









