Wohnkaladeiskop Freimann
Beitrag für ein genossenschaftliches Wohnungsbauprojekt mit ca. 100 Wohnungen in München-Neufreimann.
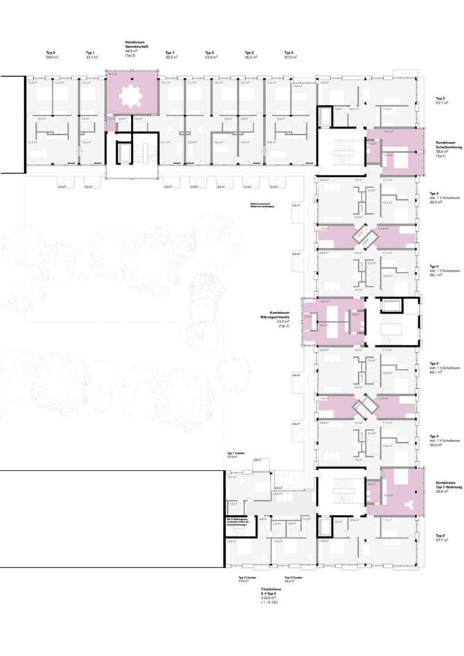
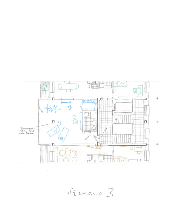
Die entwickelte Struktur eröffnet die Möglichkeit, die Wohnungen über sog. Schalträume nachträglich anzupassen und zu erweitern, während gemeinschaftliche Bereiche das soziale Miteinander fördern. Das Wohnhaus agiert hierbei wie ein lebender Organismus, der sich den wechselnden Anforderungen der BewohnerInnen anpasst. Dies schafft eine inklusive Umgebung, in der Diversität und kollektive Interaktion gefördert werden.
München 2023
in Zusammenarbeit mit TILLO/KAA












