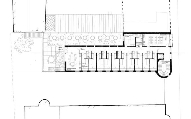
Directly adjacent to the All Saints' Church of the Greek Orthodox community in Munich's Schwabing district, a generation house is to be built. The area on which the property is located is characterised by the disintegrating perimeter block development of the building blocks to the north. There is currently a single-storey commercial building for a stonemason on the site. The new generation house is intended to complete the building block to the north of the church and create a transition to the church.
n the new generation house, young children, students and trainees as well as older people in need of care will live together under one roof. A strong link between the interior and exterior spaces plays a central role in the concept of the intergenerational house. The church forecourt serves as a meeting place for the community as well as a playable outdoor space for the new generation house. The grading of the building provides accessible terraces on all floors.
Munich since 2023







