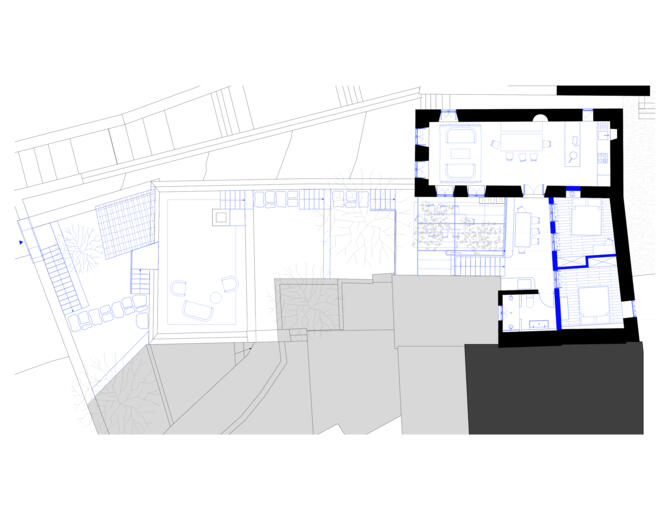
Conversion of a holiday home in Kamini, a small village on the island of Hydra. The existing building is located in the centre of the historic village on a long, narrow plot on a hill. The terraced garden extends along the topography, sloping from east to west below the house.
The house itself was built in 1972 using traditional methods with masonry walls and wooden beamed ceilings and roof trusses.
For the remodelling, only sensitive interventions to the façade in the form of a few additional window openings are planned. The roof is to be completely renewed and rebuilt using traditional construction methods. The interior is to be carefully renovated with respect for the original structure of the house. A new access route to the property on the western street leads upwards along the terraced garden and ends in the sheltered inner courtyard area of the L-shaped building.
Munich 2023-2024







